Kivikko

Patterikuja 1, 00940 HELSINKI

3H+K+S | 80 m2 | 34637,53 €

Tämä koti on vapaa – muuta vaikka heti! Ota yhteyttä myyntiimme.

Lähetä sähköposti: myynti.haso@inna.fi

Soita asiakaspalveluun: 030 609 5900 ma–pe 9.00–15.00

Koska tämä koti on heti vapaa, ei sinun tarvitse odottaa tarjouskierrosta. Ole vain yhteydessä meihin ja tule tutustumaan.

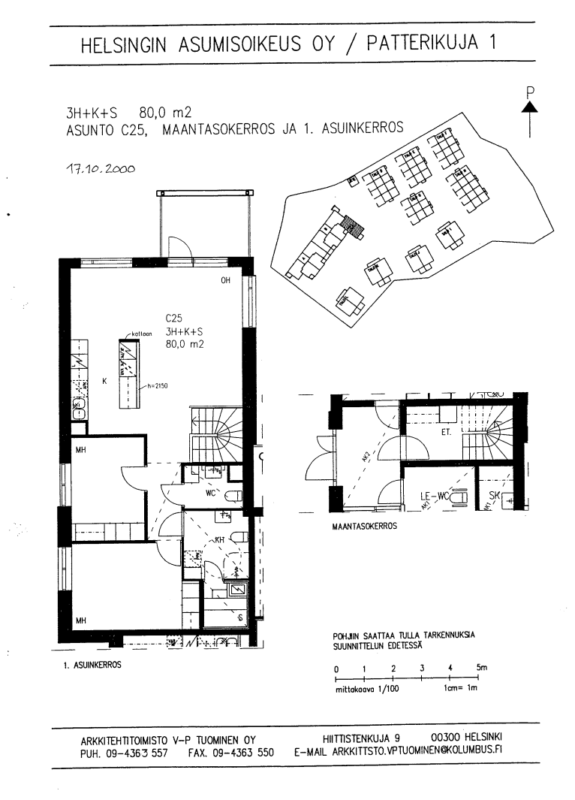
Vapaa kolmen huoneen kaksitasoinen asunto rauhallisella Kivikkolla. Asunnon toimiva kahden kerroksen ratkaisu tuo selkeyttä arkeen ja lisää asumisviihtyvyyttä.

Ensimmäisessä kerroksessa sijaitsee eteinen. Toisessa kerroksessa ovat varsinaiset asuintilat, oma sauna sekä parveke, jotka tarjoavat mukavat puitteet arkeen ja rentoutumiseen.

Patterikujan kaikkien asuntojen kylpyhuoneremontti on valmistunut syyskuussa 2022, mikä tuo huolettomuutta asumiseen.

Liityntäliikenteen bussit tarjoavat sujuvat yhteydet muun muassa Kontulan metroasemalle ja edelleen laajempiin julkisen liikenteen verkostoihin.

Asunnon tiedot

Osoite Patterikuja 1 C 25
Kaupunginosa Kivikko
Huoneisto 3H+K+S
Pinta-ala 80m2
Kerros 1
Vapautuminen Tämä asunto on vapaa
Asuntopiha Ei
Esteetön kulku Ei
Huoneistosauna Kyllä
Parveke Kyllä

Muutostyöt

  • 2006 parvekelasitus, jäännösarvo 146 euroa.
  • Asunnossa olevat lisä- ja muutostyöt ovat asumisoikeudenhaltijan korjaus- ja ylläpitovastuulla.

Asuinkustannukset

Asumisoikeusmaksu 34637,53 €
Alkuperäinen asumisoikeusmaksu 20702,08 €
Asumisoikeusmaksun indeksitarkistus 13789,45 €
Muutostyöt 146 €
Vastike 1153,7 €/kk

Tupakointi

Kaikki Hason uudet asumisoikeussopimukset solmitaan savuttomina 1.1.2023 alkaen. Tupakointi on kielletty sisällä, parvekkeilla sekä piha-alueella.

Lemmikit

Lemmikit ovat tervetulleita Hason kaikkiin kohteisiin.

Koti rauhallisen päättyvän tien varrelta, erinomaisten ulkoilumahdollisuuksien ääreltä? Sitä tarjoaa Patterikuja 1 ja sen monipuoliset mahdollisuudet. Patterikujalla on kerros-, rivi- ja paritalokoteja monenlaisiin elämäntilanteisiin.

Liityntäliikenteen bussit tarjoavat kätevän yhteyden mm. Kontulan metroasemalle. Lisäksi Kehä I:n poikittaisliikenteen bussit pysähtyvät Kivikon kohdalla.

Rivitalo- ja paritalohuoneistot sekä asunto C25 ovat kahdessa tasossa. Kerrostalossa on hissi. Kaikissa asunnoissa on oma sauna ja parveke tai asuntopiha. Paritaloissa (I46 – L53) on saunan yhteydessä tilava pukuhuone. Arkea helpottaa kerrostalon siipiosan talopesula.

Patterikujan kaikkien kylpyhuoneiden remontti valmistui 9/2022. Remontissa mm. laatoitettiin kylpyhuoneet ja uusittiin vesikalusteet.

Tervetuloa Haso-kotiin!

Rakennuksen tiedot

Talotyyppi Kerrostalo
Valmistumisvuosi 2001
Lämmitysmuoto Kaukolämpö
Energialuokka
Internetyhteys Kyllä
Asuntojen määrä 53
Autopaikat 51
Sähköautojen latauspaikat 2
Hissi Kyllä
Pesutupa Kyllä
Kuivaushuone Kyllä
Talosauna Ei
Kerhohuone Kyllä
Irtaimistovarasto Kyllä
Ulkoiluvälinevarasto Kyllä
Leikkipaikka Kyllä
Aurinkopaneelit Ei
Väestönsuoja Kyllä

Kustannukset

Keskivastike 13,9 €/jm2/kk
Vesimaksu Vesimaksu 25 €/hlö/kk

Savuttomia koteja

Kaikki Hason uudet asumisoikeussopimukset solmitaan savuttomina 1.1.2023 alkaen. Tupakointi on kielletty sisällä, parvekkeilla sekä piha-alueella.

Lemmikit

Lemmikit ovat tervetulleita Hason kaikkiin kohteisiin.

Oletko kiinnostunut tästä tai tämän kaltaisista asunnoista?

Siirry täyttämään asuntohakemus ja lisää hakemukseen ne ominaisuudet, joita toivot tulevalta Haso-kodiltasi.
Hasolla asuntoja haetaan merkitsemällä hakemukseen ne ominaisuudet, joiden mukaisista asunnoista on kiinnostunut.
Vapautuvaa kotia tarjotaan hakuehtojen mukaisesti hakemuksen jättäneille hakijoille. 
Mikäli haluat muuttaa aiemmin tekemääsi hakemusta, tee uusi asuntohakemus. Uusi hakemus korvaa vanhan.

Lue myös: Näin haet Haso asuntoa

Kohteen asunnot

Huoneistotyyppi Pinta-ala m2 Asuntoja Vastike €/kk
2-3h+kk+s636899,89-918,1
2H+K+S46-547689,86-802,59
2H+KK+S4611689,86-703,9
3H+K+S76,5-80211059,6-1153,7
4h+k+s+khh116,511484,52
4h+k+saunaosasto116,5-11771484,52-1490,91