Kevätmuutto mielessä? Tutustu vapaana oleviin koteihin ja hyödynnä etu uusille asukkaille: valikoiduissa kodeissa 1–3 kuukauden vastike veloituksetta.

Tutustu kampanjan ehtoihin
Kannelmäki

Posetiivarinkuja 6, 00420 HELSINKI

5H+K+S | 109 m2 | 42096,34 €

Tämä koti on vapaa – muuta vaikka heti! Ota yhteyttä myyntiimme.

Lähetä sähköposti: myynti.haso@inna.fi

Soita asiakaspalveluun: 030 609 5900 ma–pe 9.00–15.00

Tässä kodissa sinun ei tarvitse odottaa tarjouskierrosta. Ole vain yhteydessä meihin ja sovitaan näyttö!

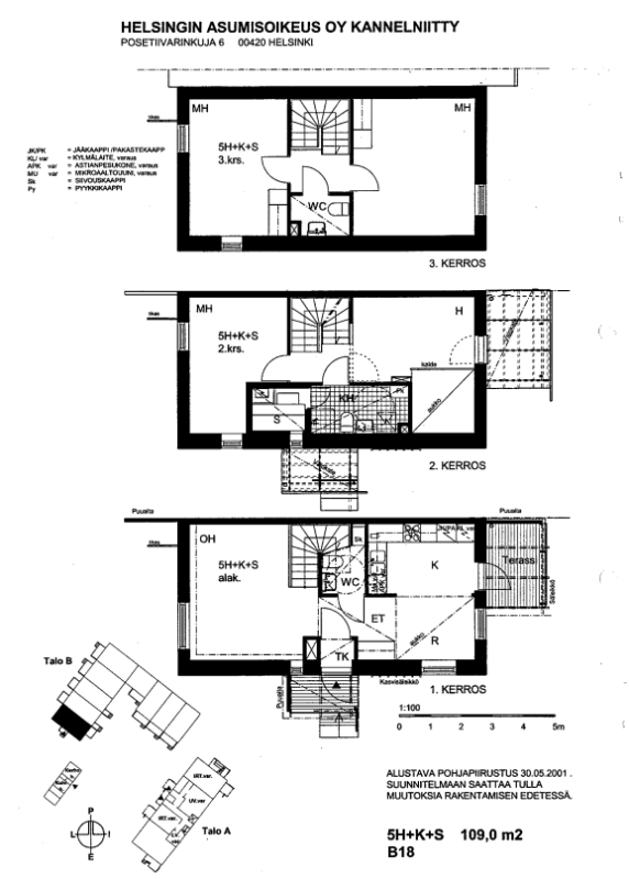
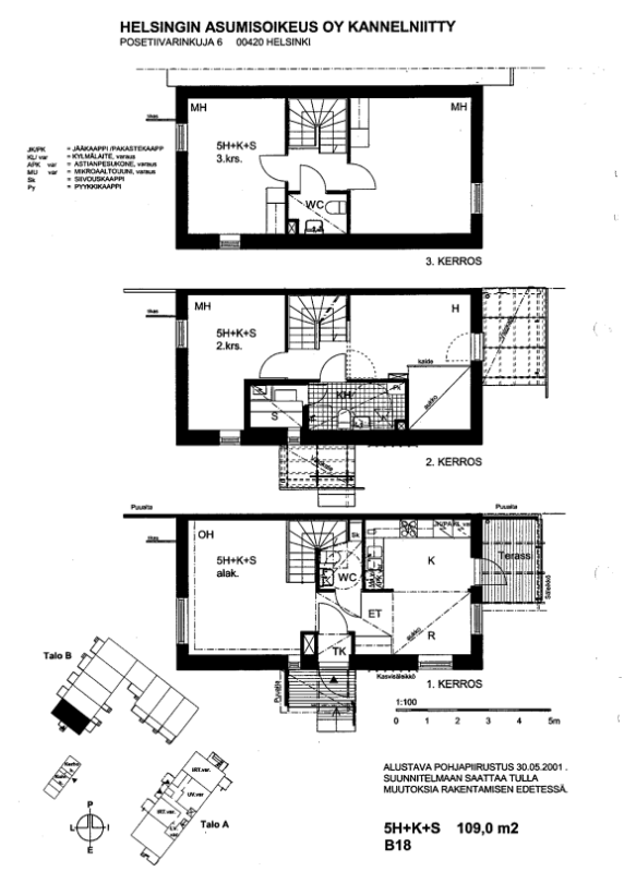
Keväällä vapautumassa Kannelmäestä saunallinen tilava 5h+kt huoneisto. Huoneisto jakautuu kolmeen kerrokseen. Talo sijaitsee aivan Kannelmäen palveluiden läheisyydessä. Loistavat kulkuyhteydet takaavat vaivattoman liikkumisen, mm. 600 metrin päässä sijaitsevalta Kannelmäen juna-asemalta pääset sujuvasti vartissa Helsingin keskustaan!

Myös Kannelmäen kattavat omat palvelut; koulut, kaupat ja liikunta-alueet kävelymatkan päässä, mm. Kauppakeskus Kaari 15 minuutin kävelymatkan päässä. Talon pohjakerroksesta löytyy yhteisistä tiloista irtaimistovarastot sekä ulkoiluväline- ja lastenvaunuvarasto. Kerhotila ja yhteinen kuivaushuone sijaitsevat piharakennuksessa tontin lounaisnurkalla.

Asunnon tiedot

Osoite Posetiivarinkuja 6 B 18
Kaupunginosa Kannelmäki
Huoneisto 5H+K+S
Pinta-ala 109m2
Vapautuminen Tämä asunto on vapaa
Asuntopiha Ei
Esteetön kulku Ei
Huoneistosauna Kyllä
Parveke Ei

Asuinkustannukset

Asumisoikeusmaksu 42096,34 €
Alkuperäinen asumisoikeusmaksu 25149,31 €
Asumisoikeusmaksun indeksitarkistus 16947,03 €
Vastike 1600,93 €/kk

Tupakointi

Kaikki Hason uudet asumisoikeussopimukset solmitaan savuttomina 1.1.2023 alkaen. Tupakointi on kielletty sisällä, parvekkeilla sekä piha-alueella.

Lemmikit

Lemmikit ovat tervetulleita Hason kaikkiin kohteisiin.

Kannelmäen ainoa Haso-kohde sijaitsee Kannelmäessä aivan Kaarelanpuiston vieressä, tarjoten erinomaiset mahdollisuudet liikuntaan ja ulkoiluun. Lisäksi terveysasema, koulu, päiväkodit ja muut palvelut ovat vain puolen kilometrin päässä.

Posetiivarinkuja 6 tarjoaa erinomaiset puitteet rauhalliseen arkeen: jokaisessa kodissa on oma sauna sekä parveke tai terassi. Kerrostalossa on hissi helpottamassa liikkumista. Pesutupaa ei kohteesta löydy, mutta kuivaushuone sijaitsee piharakennuksessa. Perhejuhlia ja yhteisiä tilaisuuksia varten talossa on myös kerhotila.

Rivitalon huoneisto B18 on kolmekerroksinen.

Tervetuloa Haso-kotiin!

Rakennuksen tiedot

Talotyyppi Kerrostalo
Valmistumisvuosi 2003
Lämmitysmuoto Kaukolämpö
Energialuokka F, E
Internetyhteys Kyllä
Asuntojen määrä 20
Autopaikat 18
Sähköautojen latauspaikat
Hissi Kyllä
Pesutupa Ei
Kuivaushuone Kyllä
Talosauna Ei
Kerhohuone Kyllä
Irtaimistovarasto Kyllä
Ulkoiluvälinevarasto Kyllä
Leikkipaikka Kyllä
Aurinkopaneelit Ei
Väestönsuoja Kyllä

Kustannukset

Keskivastike 15,7 €/jm2/kk
Vesimaksu Vesimaksu 25 €/hlö/kk

Savuttomia koteja

Kaikki Hason uudet asumisoikeussopimukset solmitaan savuttomina 1.1.2023 alkaen. Tupakointi on kielletty sisällä, parvekkeilla sekä piha-alueella.

Lemmikit

Lemmikit ovat tervetulleita Hason kaikkiin kohteisiin.

Oletko kiinnostunut tästä tai tämän kaltaisista asunnoista?

Siirry täyttämään asuntohakemus ja lisää hakemukseen ne ominaisuudet, joita toivot tulevalta Haso-kodiltasi.
Hasolla asuntoja haetaan merkitsemällä hakemukseen ne ominaisuudet, joiden mukaisista asunnoista on kiinnostunut.
Vapautuvaa kotia tarjotaan hakuehtojen mukaisesti hakemuksen jättäneille hakijoille. 
Mikäli haluat muuttaa aiemmin tekemääsi hakemusta, tee uusi asuntohakemus. Uusi hakemus korvaa vanhan.

Lue myös: Näin haet Haso asuntoa

Kohteen asunnot

Huoneistotyyppi Pinta-ala m2 Asuntoja Vastike €/kk
1h+kk+s42,53733,19-747,48
2H+K+S63-65,541024,9-985,49
2H+KK+S55-6341005,74-895,53
3H+K+S77,551199,48
3h+kk+s69,511098,06
4H+K+S9421396,67
5H+K+S10911600,93