Tutustu heti vapaisiin koteihin ja nappaa kevättarjous! Tarjoamme sinulle valikoiduissa asunnoissa ensimmäisen kuukauden vastikkeen ilmaiseksi.

Tutustu kampanjan ehtoihin
Laajasalo

Svanströminkuja 1a, 00870 HELSINKI

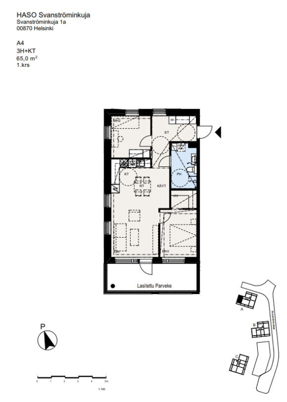
3h+kt | 65 m2 | 47006,5 €

Tässä kodissa sinun ei tarvitse odottaa tarjouskierrosta. Ole vain yhteydessä meihin ja sovitaan näyttö!

Viihtyisä 65 m²:n kolmio tarjoaa toimivan pohjaratkaisun ja kodikkaan tunnelman rauhallisella sijainnilla Laajasalossa.

Asunnossa on tilavat ja valoisat huoneet, jotka mukautuvat monenlaisiin elämäntilanteisiin. Olohuoneesta on käynti lasitetulle parvekkeelle, joka toimii mukavana lisähuoneena. Parkettilattiat tuovat lämpöä ja yhtenäisyyttä oleskelutiloihin, ja märkätiloissa on ajattomat keraamiset laatat.

Keittiö ja olohuone muodostavat viihtyisän kokonaisuuden arkeen ja yhdessäoloon. Kaksi erillistä makuuhuonetta tarjoavat rauhaa niin perheelle, pariskunnalle kuin etätyöskentelyynkin.

Asunnon tiedot

Osoite Svanströminkuja 1a A 4
Kaupunginosa Laajasalo
Huoneisto 3h+kt
Pinta-ala 65m2
Kerros 1
Vapautuminen Vapautumassa 7.5.2026
Asuntopiha Ei
Esteetön kulku Ei
Huoneistosauna Ei
Parveke Kyllä

Asuinkustannukset

Asumisoikeusmaksu 47006,50 €
Alkuperäinen asumisoikeusmaksu 39311,00 €
Asumisoikeusmaksun indeksitarkistus 7695,50 €
Vastike 969,81 €/kk

Tupakointi

Kaikki Hason uudet asumisoikeussopimukset solmitaan savuttomina 1.1.2023 alkaen. Tupakointi on kielletty sisällä, parvekkeilla sekä piha-alueella.

Lemmikit

Lemmikit ovat tervetulleita Hason kaikkiin kohteisiin.

Viehättävä Laajasalo on alue, jossa meri on moneen suuntaan lähellä ja ulkoilumahdollisuuksia on runsaasti. Haso Svanströminkuja 1a tarjoaa koteja erilaisiin elämäntilanteisiin yksiöistä neljän makuuhuoneen tilaviin koteihin.

Päiväkoteja ja kouluja on useita ja Laajasalon terveysasema palvelee asukkaita lähettyvillä. Kirjastosta löytyy luettavaa, taidetta ja siellä järjestetään myös erilaisia tapahtumia. Kruunuvuorenrannassa on lähikauppoja ja lisäksi Laajasalon Kauppakeskus Saaressa on useita päivittäistavarakauppoja, erikoisliikkeitä ja ravintoloita. Harrastusmahdollisuuksia on runsaasti.

Talon 86 autopaikkaa sijaitsevat autohallissa ja tontin avopaikoilla.
Kaikissa asunnoissa on lasitettu parveke, joka tuo joustavuutta tilantuntua jokaiseen kotiin. Lattiamateriaalina on lämminhenkinen parketti ja kylpy- ja wc-tiloissa keraaminen laatta. Asukkaiden käytössä on kerhohuone, talosauna, pesula ja kuivaushuone.

Talossa on parveketupakointikielto.

Tervetuloa Haso-kotiin Svanströminkujalle!

Rakennuksen tiedot

Talotyyppi Kerrostalo
Valmistumisvuosi 2020
Lämmitysmuoto Kaukolämpö
Energialuokka C
Internetyhteys Kyllä
Asuntojen määrä 113
Autopaikat 87
Sähköautojen latauspaikat 10
Hissi Ei
Pesutupa Kyllä
Kuivaushuone Kyllä
Talosauna Kyllä
Kerhohuone Kyllä
Irtaimistovarasto Kyllä
Ulkoiluvälinevarasto Ei
Leikkipaikka Kyllä
Aurinkopaneelit Ei
Väestönsuoja Kyllä

Kustannukset

Keskivastike 15,68 €/jm2/kk
Vesimaksu Vesimaksulaskutus kulutuksen mukaan.
Saunamaksu 20 €/kk

Savuttomia koteja

Kaikki Hason uudet asumisoikeussopimukset solmitaan savuttomina 1.1.2023 alkaen. Tupakointi on kielletty sisällä, parvekkeilla sekä piha-alueella.

Lemmikit

Lemmikit ovat tervetulleita Hason kaikkiin kohteisiin.

Oletko kiinnostunut tästä tai tämän kaltaisista asunnoista?

Siirry täyttämään asuntohakemus ja lisää hakemukseen ne ominaisuudet, joita toivot tulevalta Haso-kodiltasi.
Hasolla asuntoja haetaan merkitsemällä hakemukseen ne ominaisuudet, joiden mukaisista asunnoista on kiinnostunut.
Vapautuvaa kotia tarjotaan hakuehtojen mukaisesti hakemuksen jättäneille hakijoille. 
Mikäli haluat muuttaa aiemmin tekemääsi hakemusta, tee uusi asuntohakemus. Uusi hakemus korvaa vanhan.

Lue myös: Näin haet Haso asuntoa

Kohteen asunnot

Huoneistotyyppi Pinta-ala m2 Asuntoja Vastike €/kk
1h+kt34,5-35,520574,52-633,94
2h+kt39,5-51,537647,27-847,35
3h+kt63,5-65331006,03-996,31
3h+kt+s76,5-80,5201065,3-1201,87
4h+kt+s10421443,66-1457,77
5h+kt+s116,511577,25