Tutustu heti vapaisiin koteihin ja nappaa kevättarjous! Tarjoamme sinulle valikoiduissa asunnoissa ensimmäisen kuukauden vastikkeen ilmaiseksi.

Tutustu kampanjan ehtoihin
Viikki

Tilanhoitajankaari 30, 00790 HELSINKI

2H+K+S | 57 m2 | 24813,8 €

Tämä koti on vapaa – muuta vaikka heti! Ota yhteyttä myyntiimme.

Lähetä sähköposti: myynti.haso@inna.fi

Soita asiakaspalveluun: 030 609 5900 ma–pe 9.00–15.00

Kevättä ilmassa! Tämä koti on mukana 1. kuukausi 0 €-kampanjassa!

Koska tämä koti on heti vapaa, ei sinun tarvitse odottaa tarjouskierrosta. Ole vain yhteydessä meihin ja tule tutustumaan.

Kotoisa ja toimiva kaksio vehreässä Viikissä

Tilanhoitajankaari 30 B 25 tarjoaa hurmaavan ja vaivattoman kodin sinulle, joka arvostat rauhallista sijaintia, luonnonläheistä ympäristöä ja toimivaa arkea. Viikki tunnetaan vehreydestään, erinomaisista ulkoilureiteistään ja palveluista, jotka löytyvät kaikki kävelyetäisyydeltä.

Kotiin tullessa sinut toivottaa tervetulleeksi selkeä pohjaratkaisu, joka tekee arjesta yksinkertaista ja sujuvaa. Olohuone ja keittiö muodostavat yhtenäisen, helposti sisustettavan kokonaisuuden – juuri sopivan kokoisen arjen kohtaamispaikan. Tilasta löytävät paikkansa niin ruokapöytä kuin sohvakin.

Asumismukavuutta lisää oman saunan mahdollisuus, kun taas lasitettu parveke tuo mukavasti lisätilaa niin aamuhetkiin kuin leppoisaan iltateen nauttimiseen. Parveke toimii ympäri vuoden pienenä lisähuoneena, jossa voi hengähtää arjen keskellä.

Viikki tarjoaa monipuoliset palvelut aivan läheltä: koulut, päiväkodit ja kaupat löytyvät vain muutaman sadan metrin säteeltä. Ulkoilureitit, Viikin puistoalueet, luontopolut ja kaupungin parhaat virkistysmahdollisuudet avautuvat suoraan kotiovelta.

Talossa arkea helpottavat pesula, kuivaushuone ja kerhotilat, ja ympäristö on suunniteltu turvalliseksi ja viihtyisäksi. Asukkaat voivat myös hyödyntää kohteen aurinkoenergiajärjestelmän tuomaa ekologista lisäarvoa.

Tämä koti sopii mainiosti sinulle, joka etsit helppoa, rauhallista ja toimivaa arkea vehreässä ympäristössä – ilman kompromisseja. Kaiken lisäksi tämä koti on jo muuttovalmis, sinun ei tarvitse odottaa tarjouskierrosta saadaksesi tästä uuden kodin. Ole vain yhteydessä meihin ja sovitaan näyttö!

Tämä kaksio Viikin sydämessä voi olla juuri se koti, jota olet etsinyt.

Asunnon tiedot

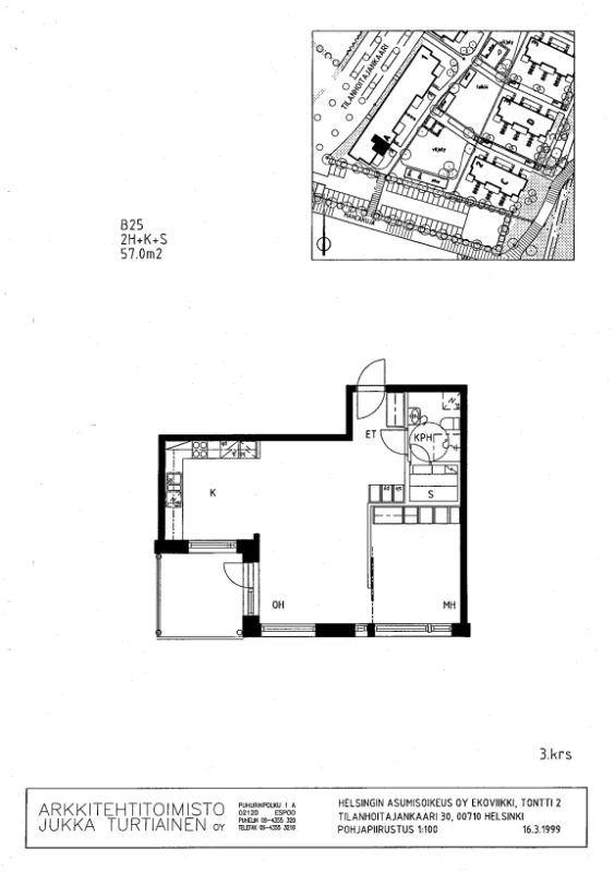
Osoite Tilanhoitajankaari 30 B 25
Kaupunginosa Viikki
Huoneisto 2H+K+S
Pinta-ala 57m2
Kerros 3
Vapautuminen Tämä asunto on vapaa
Asuntopiha Ei
Esteetön kulku Ei
Huoneistosauna Kyllä
Parveke Kyllä

Asuinkustannukset

Asumisoikeusmaksu 24813,80 €
Alkuperäinen asumisoikeusmaksu 14125,77 €
Asumisoikeusmaksun indeksitarkistus 10688,03 €
Vastike 930 €/kk

Tupakointi

Kaikki Hason uudet asumisoikeussopimukset solmitaan savuttomina 1.1.2023 alkaen. Tupakointi on kielletty sisällä, parvekkeilla sekä piha-alueella.

Lemmikit

Lemmikit ovat tervetulleita Hason kaikkiin kohteisiin.

Haso Tilanhoitajankaari 30 on mainio monimuotoinen kohde luonnonläheisessä Viikissä. Pihapiirissä on yksi kerrostalo ja kaksi kaksikerroksista rivitaloa, yhteensä koteja on 38. Koulu ja päiväkodit ovat aivan kulman takana ja asumisen peruspalvelut ovat lähellä.

Viikki on toiminut ympäristötietoisen rakentamisen koealueena ja tässä kohteessa on aurinkoenergian keräysjärjestelmä.

Kaikissa asunnoissa on parveke tai terassi, neljännen kerroksen huoneistoissa on ihanat kattoterassit. Parvekkeet ja maaterassit ovat lasitettuja.

Rivitaloissa on ilmeikkäät lasitetut lasikattoiset viherhuoneet, asuntokohtaiset saunat sekä omat pihat. Asukkaiden käytössä on pesula ja kuivaushuone sekä kerhotila kerrostalon pohjakerroksessa.

Kohteessa on yhteensä 46 autopaikkaa ja mahdollisuus sähköauton lataukseen.

Kohteessa tupakointi on kielletty huoneistoihin kuuluvilla parvekkeilla, ranskalaisilla parvekkeilla, huoneistoterasseilla, huoneistopihoilla ja rivitalojen sisäänkäyntien yhteydessä olevilla ulkokuisteilla (Ympäristökeskuksen päätöksellä). Tupakointi yhteistiloissa on myös kielletty.

Tervetuloa Haso-kotiin vehreään Viikkiin Tilanhoitajankaarelle!

Rakennuksen tiedot

Talotyyppi Kerrostalo
Valmistumisvuosi 2000
Lämmitysmuoto Kaukolämpö
Energialuokka F, E
Internetyhteys Kyllä
Asuntojen määrä 38
Autopaikat 25
Sähköautojen latauspaikat 2
Hissi Ei
Pesutupa Kyllä
Kuivaushuone Kyllä
Talosauna Ei
Kerhohuone Kyllä
Irtaimistovarasto Kyllä
Ulkoiluvälinevarasto Ei
Leikkipaikka Kyllä
Aurinkopaneelit Ei
Väestönsuoja Kyllä

Kustannukset

Keskivastike 15,76 €/jm2/kk
Vesimaksu Vesimaksu 25 €/hlö/kk

Savuttomia koteja

Kaikki Hason uudet asumisoikeussopimukset solmitaan savuttomina 1.1.2023 alkaen. Tupakointi on kielletty sisällä, parvekkeilla sekä piha-alueella.

Lemmikit

Lemmikit ovat tervetulleita Hason kaikkiin kohteisiin.

Oletko kiinnostunut tästä tai tämän kaltaisista asunnoista?

Siirry täyttämään asuntohakemus ja lisää hakemukseen ne ominaisuudet, joita toivot tulevalta Haso-kodiltasi.
Hasolla asuntoja haetaan merkitsemällä hakemukseen ne ominaisuudet, joiden mukaisista asunnoista on kiinnostunut.
Vapautuvaa kotia tarjotaan hakuehtojen mukaisesti hakemuksen jättäneille hakijoille. 
Mikäli haluat muuttaa aiemmin tekemääsi hakemusta, tee uusi asuntohakemus. Uusi hakemus korvaa vanhan.

Lue myös: Näin haet Haso asuntoa

Kohteen asunnot

Huoneistotyyppi Pinta-ala m2 Asuntoja Vastike €/kk
1h+tk+s462795,72
2H+K+S57-634920,54-997,29
2H+KK+S47-508773,82-823,46
2h+kt+s38,52691,39
3-4h+k+s76,5-7721198,39-1206,11
4H+K+S86,5-99,5141326,68-1569,54
5H+K+S11441762,13