Kevätmuutto mielessä? Tutustu vapaana oleviin koteihin ja hyödynnä etu uusille asukkaille: valikoiduissa kodeissa 1–3 kuukauden vastike veloituksetta.

Tutustu kampanjan ehtoihin
Myllypuro

Yläkiventie 11, 00920 HELSINKI

3h+kt | 68 m2 | 44718,36 €

Tämä koti on vapaa – muuta vaikka heti! Ota yhteyttä myyntiimme.

Lähetä sähköposti: myynti.haso@inna.fi

Soita asiakaspalveluun: 030 609 5900 ma–pe 9.00–15.00

Tässä kodissa sinun ei tarvitse odottaa tarjouskierrosta. Ole vain yhteydessä meihin ja sovitaan näyttö!

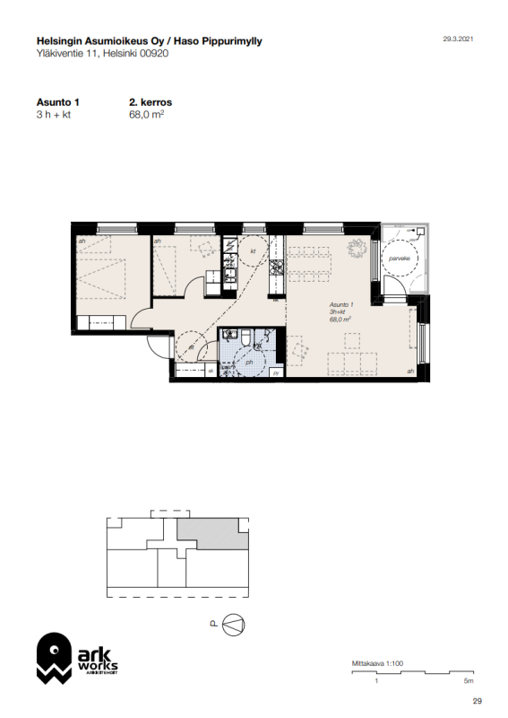
Valoisa kolmio vuonna 2022 valmistuneessa talossa tarjoaa helppoa ja esteetöntä asumista hissitalon 2. kerroksessa.

Asunnossa on avara pohjaratkaisu, lasitettu parveke, laminaattilattia ja tilavaraus astianpesukoneelle.

Asunnon tiedot

Osoite Yläkiventie 11 A 1
Kaupunginosa Myllypuro
Huoneisto 3h+kt
Pinta-ala 68m2
Kerros 2
Vapautuminen Tämä asunto on vapaa
Asuntopiha Ei
Esteetön kulku Kyllä
Huoneistosauna Ei
Parveke Kyllä

Asuinkustannukset

Asumisoikeusmaksu 44718,36 €
Alkuperäinen asumisoikeusmaksu 38580,00 €
Asumisoikeusmaksun indeksitarkistus 6138,36 €
Vastike 1016,94 €/kk

Tupakointi

Kaikki Hason uudet asumisoikeussopimukset solmitaan savuttomina 1.1.2023 alkaen. Tupakointi on kielletty sisällä, parvekkeilla sekä piha-alueella.

Lemmikit

Lemmikit ovat tervetulleita Hason kaikkiin kohteisiin.

Yläkiventie 11 on 30 asumisoikeusasunnon kerrostalo.

Vuonna 2022 valmistunut talo sijaitsee lähellä Myllypuron runsaita palveluita, kattavia harrastusmahdollisuuksia ja toimivia kulkuyhteyksiä – metro vie keskustaan 16 minuutissa.

Kävelymatkan varrelta löytyvät mm. metroasema, uudistettu Myllypuron Ostari liikkeineen ja palveluineen, terveysasema sekä
päiväkodit ja peruskoulut. Myllypurolaisille tuttu paikka on myös asukastalo Mylläri – se pyöreä rakennus ostarin keskellä – jota ylläpitää kaupunginosan aktiivinen seura.

Talo on savuton. Tupakointi on kielletty asunnoissa, parvekkeilla, yhteisissä tiloissa sekä pihalla lukuun ottamatta mahdollisesti erikseen osoitettua tupakointipaikkaa.

Kohteessa on 30 asumisoikeusasuntoa, jotka ovat kooltaan 38,0–87,0 m². Kaikkiin asuntoihin on esteetön kulku ja asunnoissa on esteettömyyden mahdollistava lasitettu parveke. Jokaiseen asuntoon kuuluu yhtiön kellaritiloissa sijaitseva lämmin irtaimistovarasto. Lisäksi osassa asuntoja on huoneistokohtainen sauna.

Asuntojen lattiamateriaalina on laminaatti, märkätiloissa keraaminen laatoitus. Asukkaille on yhteensä 19 autopaikkaa, joista 17 sijaitsee korttelin yhteisessä pysäköintihallissa ja kaksi tontilla.

Rakennuksen tiedot

Talotyyppi Kerrostalo
Valmistumisvuosi 2022
Lämmitysmuoto Kaukolämpö
Energialuokka A
Internetyhteys Kyllä
Asuntojen määrä 30
Autopaikat 17
Sähköautojen latauspaikat 2
Hissi Ei
Pesutupa Kyllä
Kuivaushuone Kyllä
Talosauna Kyllä
Kerhohuone Kyllä
Irtaimistovarasto Kyllä
Ulkoiluvälinevarasto Kyllä
Leikkipaikka Kyllä
Aurinkopaneelit Kyllä
Väestönsuoja Kyllä

Kustannukset

Keskivastike 15,35 €/jm2/kk
Vesimaksu Vesimaksulaskutus kulutuksen mukaan.
Saunamaksu 20 €/kk

Savuttomia koteja

Kaikki Hason uudet asumisoikeussopimukset solmitaan savuttomina 1.1.2023 alkaen. Tupakointi on kielletty sisällä, parvekkeilla sekä piha-alueella.

Lemmikit

Lemmikit ovat tervetulleita Hason kaikkiin kohteisiin.

Oletko kiinnostunut tästä tai tämän kaltaisista asunnoista?

Siirry täyttämään asuntohakemus ja lisää hakemukseen ne ominaisuudet, joita toivot tulevalta Haso-kodiltasi.
Hasolla asuntoja haetaan merkitsemällä hakemukseen ne ominaisuudet, joiden mukaisista asunnoista on kiinnostunut.
Vapautuvaa kotia tarjotaan hakuehtojen mukaisesti hakemuksen jättäneille hakijoille. 
Mikäli haluat muuttaa aiemmin tekemääsi hakemusta, tee uusi asuntohakemus. Uusi hakemus korvaa vanhan.

Lue myös: Näin haet Haso asuntoa

Kohteen asunnot

Huoneistotyyppi Pinta-ala m2 Asuntoja Vastike €/kk
1h+kt386617,07-661,12
2h+kt51,56784,85-840,87
3h+kt6861016,94-1089,54
3h+kt+s70,561054,39-1129,76
4h+kt+s8761164,76-1247,96